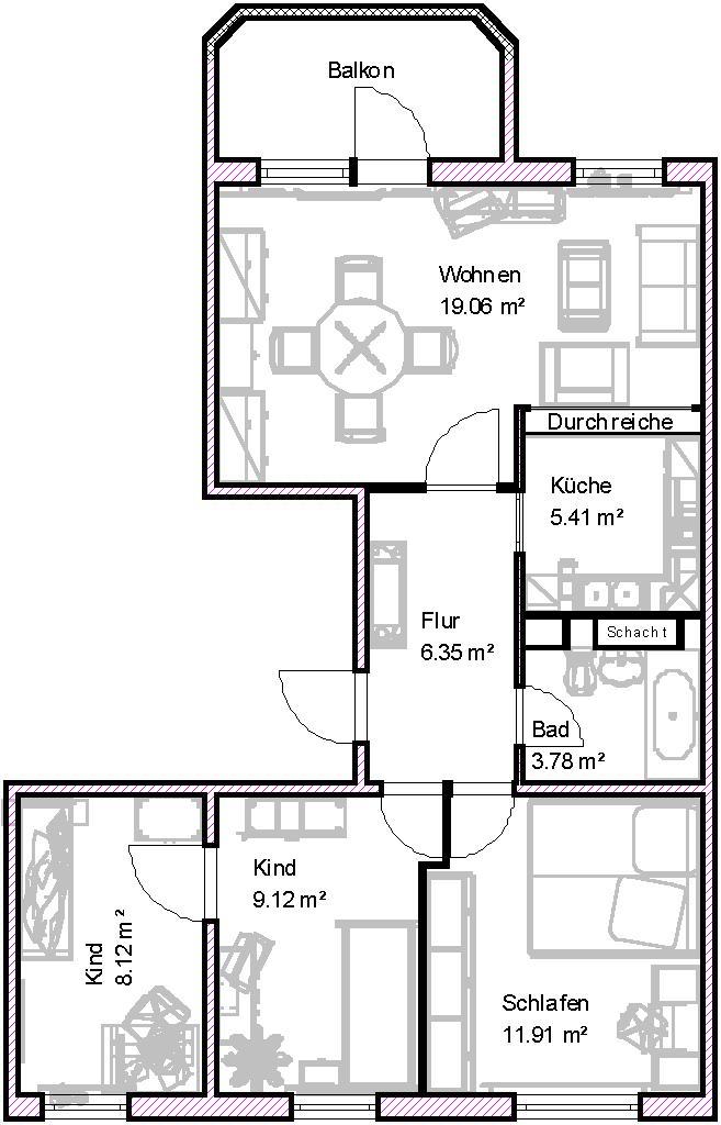
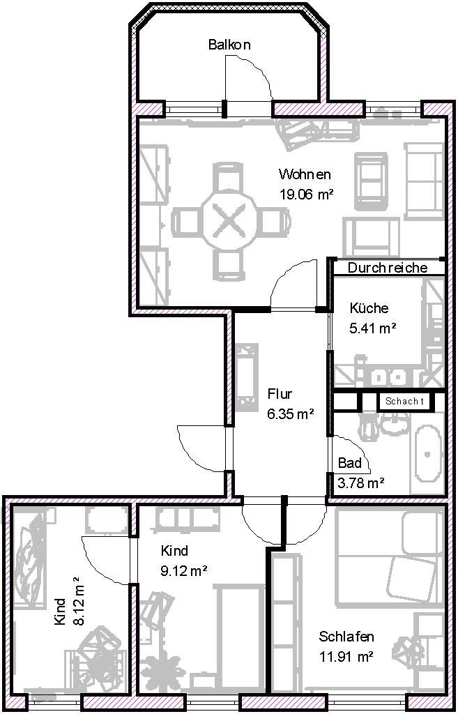
Wohnungsangebot Widderstraße 8
 
				
			Das Neubaugebiet Reform entstand Anfang der siebziger Jahre. Attraktive und sanierte Wohnungen sind nur einige Vorzüge dieses Stadtteils. Ein gewachsener Baumbestand und unsere gepflegten Außenanlagen ermöglichen entspanntes Wohnen im Grünen. Für Autofahrer ist eine gute Verkehrsanbindung über den Magdeburger Ring gegeben. Das Einkaufszentrum Börde-Park grenzt im Süden direkt an das Wohngebiet.
Anzeige-ID:
106-0-0812
Zimmer:
4 
Wohnfläche:
64,79 m²
Balkon:
1 
Erbaut in:
1975 
Zustand:
Vollsaniert 
30. Oktober 2025
 
      
     










