Wohnungsangebot Hohe Straße 23

Zentral und doch ruhig gelegen, so präsentiert sich dieser attraktive Wohnbereich. Liebevoll sanierte Bauten der 60er Jahre, umgeben von individuell gestalteten Grünbereichen, ermöglichen ein harmonisches Miteinander der Generationen. Die unmittelbare Nähe zur Lübecker Straße, mit ihren vielen Geschäften und Restaurants, stellt neben der sehr guten Verkehrsanbindung einen weiteren Pluspunkt für dieses Gebiet dar.
497€ / Warmmiete pro Monat
Anzeige-ID:
506-0-0403
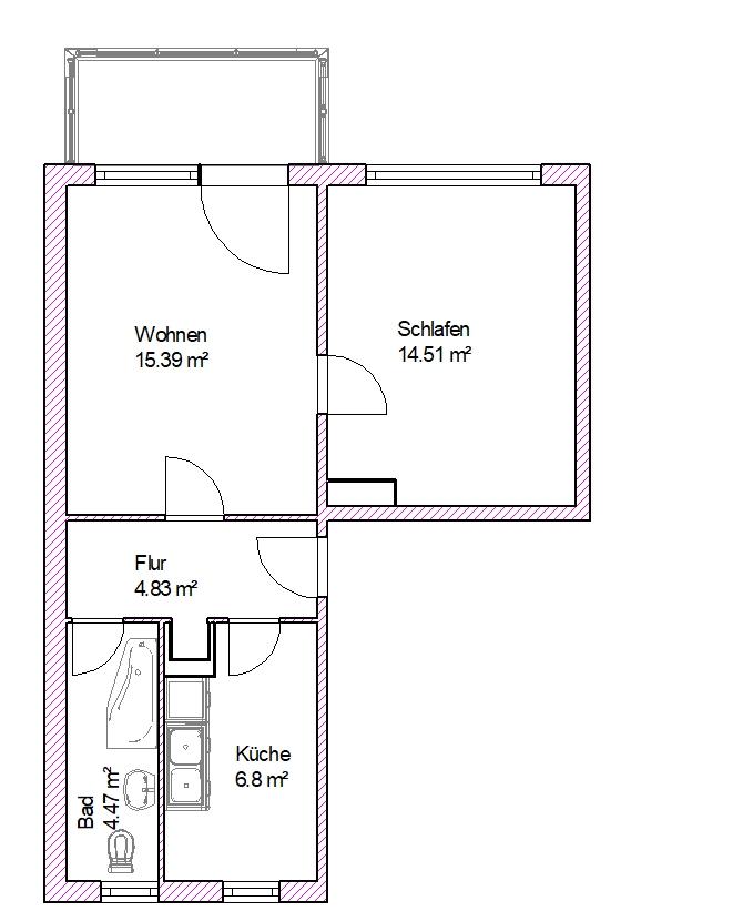
Zimmer:
2
Wohnfläche:
46,00 m²
Balkon:
1
Erbaut in:
1961
Zustand:
Vollsaniert
13. Oktober 2025
