Wohnungsangebot Fröbelstraße 42

Wohnungsangebot Fröbelstraße 42

Hier in Stadtfeld, nah der Innenstadt, fehlt es Ihnen an nichts. Das nahgelegene Einkaufscenter Flora- Park und die vielen kleine Geschäfte bieten Ihnen eine Vielzahl an Möglichkeiten. Beliebte Freizeitangebote, wie Kino und Theater sind nur einen Katzensprung entfernt. Ob mit dem Auto oder den öffentlichen Verkehrsmitteln, Sie sind in nur wenigen Minuten im Stadtzentrum. Kindereinrichtungen und Schulen befinden sich ebenfalls in unmittelbarer Umgebung.

508 / Warmmiete pro Monat
Anzeige-ID: 1971
Zimmer: 2
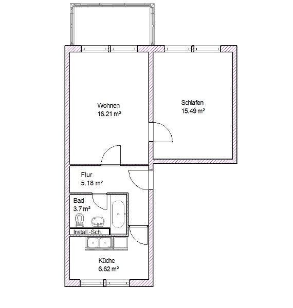
Wohnfläche: 48,60 m²
Balkon: 1
Erbaut in: 1964
Zustand: Vollsaniert
30. September 2025
PLZ: 39110
Ort: Magdeburg
Straße: Fröbelstraße
Hausnummer: 42
Etage: 2
Etagenanzahl: 4
Balkone: 1
Immobilie ist verfügbar ab: 01.12.2025

Kostenüberblick

Kaltmiete: 388,80 €
Warmmiete: 508,84 €
monatl. Betriebs-/Nebenkosten: 120,04 €
Heizkosten in Warmmiete enthalten: Ja
Genossenschaftsanteile: 1.120,00 €

Energieausweis

Energieausweis-Art: Verbrauch
Energieverbrauchskennwert: 79,60 kWh/(m²*a)
Warmwasser im Energieverbrauch enthalten: Ja
Primärenergieträger: Fernwärme
Energieeffizienzklasse: C
Energieausweis-Ausstellungsdatum: 19.08.2025
Energieausweis-Jahrgang: ab Mai 2014

Grundriss

Grundriss

Ihr Ansprechpartner

 

logo-54er

© 2025 - Wohnungsbaugenossenschaft "Stadt Magdeburg von 1954" eG

Kontakt und Anschrift | Anbieter | Impressum / Rechtliche Hinweise | Datenschutz

WBG 1954 - Menü