Wohnungsangebot Bertolt-Brecht-Straße 16

In sehr guter Wohnlage befindet sich unser 16- geschossiges Hochhaus. Es wurde aufwendig saniert und das großzügig gestaltete Entrè vermittelt bereits beim Betreten des Hauses einen Eindruck von anspruchsvollem Wohnen. In den oberen Etagen genießt man einen imposanten Blick auf Magdeburg und das Umland. Hervorragende Verkehrsanbindung, sehr gute medizinische Versorgung und gute Freizeitangebote sprechen für diesen Standort.
661€ / Warmmiete pro Monat
Anzeige-ID:
2460
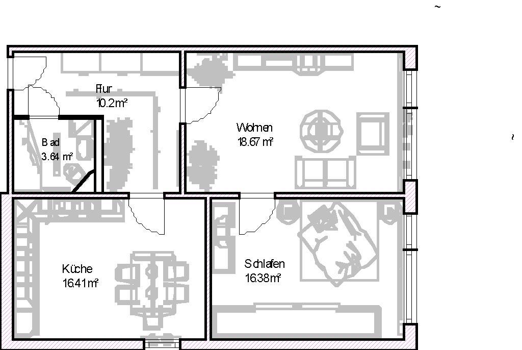
Zimmer:
3
Wohnfläche:
64,71 m²
Erbaut in:
1976
Zustand:
Vollsaniert
13. Oktober 2025
