Wohnungsangebot Bandwirkerstraße 8
1A Wohnlage. Über den Strombrückenzug errei- chen Sie die Innenstadt von Magdeburg in wenigen Minuten. Ruhe und Entspannung finden Sie in unmittelbarer Nähe im Stadt- und Elbauenpark. Kultur und Sportinteressierte können zu Fuß in die Bördelandhalle, das neue Fußballstadion und die Stadthalle gehen. Die Häuser rund um den Heumarkt sind zum überwiegenden saniert und machen einen gepflegten Eindruck. Für Autofahrer – genügend Parkplätze!
Anzeige-ID:
607-0-0107
Zimmer:
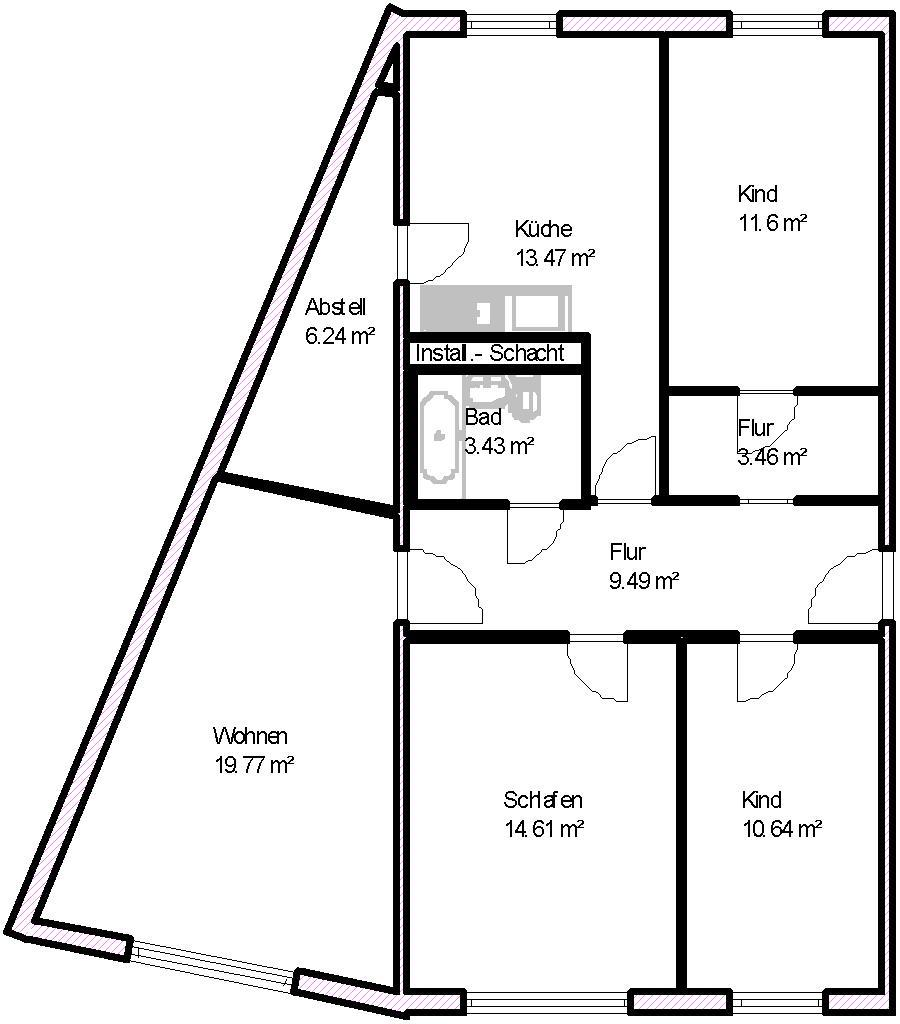
4
Wohnfläche:
93,04 m²
Erbaut in:
1986
Zustand:
Vollsaniert
19. November 2025






