Großzüge 2-Raum-Wohnung mit toller Wohnküche!

Großzüge 2-Raum-Wohnung mit toller Wohnküche!

In sehr guter Wohnlage befindet sich unser 16- geschossiges Hochhaus. Es wurde aufwendig saniert und das großzügig gestaltete Entrè vermittelt bereits beim Betreten des Hauses einen Eindruck von anspruchsvollem Wohnen. In den oberen Etagen genießt man einen imposanten Blick auf Magdeburg und das Umland. Hervorragende Verkehrsanbindung, sehr gute medizinische Versorgung und gute Freizeitangebote sprechen für diesen Standort.

564 / Warmmiete pro Monat
Anzeige-ID: 201-0-0036
Zimmer: 2
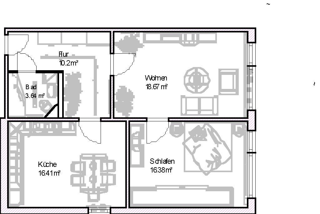
Wohnfläche: 64,71 m²
Erbaut in: 1976
Zustand: Vollsaniert
24. November 2025
PLZ: 39120
Ort: Magdeburg
Straße: Bertolt-Brecht-Straße
Hausnummer: 16
Etage: 3
Etagenanzahl: 15
Immobilie ist verfügbar ab: sofort

Kostenüberblick

Kaltmiete: 355,91 €
Warmmiete: 564,27 €
monatl. Betriebs-/Nebenkosten: 208,37 €
Heizkosten in Warmmiete enthalten: Ja
Genossenschaftsanteile: 1.120,00 €

Energieausweis

Energieausweis-Art: Verbrauch
Energieverbrauchskennwert: 71,70 kWh/(m²*a)
Warmwasser im Energieverbrauch enthalten: Ja
Primärenergieträger: Gas
Energieeffizienzklasse: B
Energieausweis-Ausstellungsdatum: 18.08.2025
Energieausweis-Jahrgang: ab Mai 2014

Grundriss

Grundriss

Ihr Ansprechpartner

Ada Schönfeld
Telefon: 0391 6292-711
 

logo-54er

© 2025 - Wohnungsbaugenossenschaft "Stadt Magdeburg von 1954" eG

Kontakt und Anschrift | Anbieter | Impressum / Rechtliche Hinweise | Datenschutz

WBG 1954 - Menü