Frühstücken auf dem Balkon – hier ideal!

Als nördliche Begrenzung der Landeshauptstadt prägt dieser Stadtteil mit Bauten der 60er und 70er Jahre das Stadtbild. Ansprechend angelegte Grünanlagen, der Zoologische Garten und der Neustädter See laden zur Erholung ein. Eine ausgeprägte Infrastruktur bietet den Bewohnern zudem eine gute Wohnqualität.
Anzeige-ID:
2510
Zimmer:
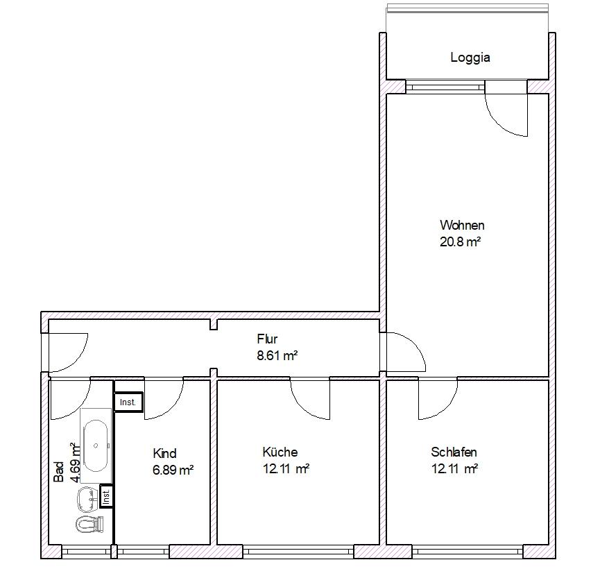
3
Wohnfläche:
66,81 m²
Balkon:
1
Erbaut in:
1974
Zustand:
Vollsaniert
13. Oktober 2025
