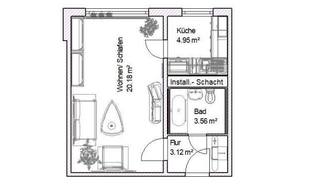
Wohnung mieten in Magdeburg